医療、福祉施設・クリニックの清掃
施設清掃は感染対策のひとつです。 医療、福社施設清掃を効果的且つ、衛生的に
行うために科学的な根拠に基づいたクリーナー(洗剤)ゾーニングやカラーリングに
よるエリア分け等を実施しウイルスや汚染物質の拡散を防止します。
作業計画

医療・福祉施設は多くの人が出入りすることに加えて、日々24時間無休で稼働しています。
その為、各フロアーや部署の状況にしたがって、清掃作業計画を立てる必要があります。
Plan(計画)、Do(実施)、Check(点検)、Action(改善)のサイクルを実施し、途切れることなく維持していくことがとても大切です。
◎Plan(計画)
- 事前に施設の環境条件などの情報を的確に把握する。
- 作業仕様書、契約内容に基づき多角的に計画を立てる。
- 弊社担当者と施設担当者様との打ち合わせ、調整を行う。
◎Do(実施)
- 作業を実施するにおいて、連絡・報告を徹底する。
- スタッフの研修、教育を行う。
◎Check(点検)
- 作業品質の確認を行う。
- 施設担当者様にヒヤリングを常時実施する。
◎Action(改善)
- スッタフの能力を高め、合理的かつ作業効率の向上を図る。
- 作業記録から改善点を見出し、より実態にあった作業計画に修正する。
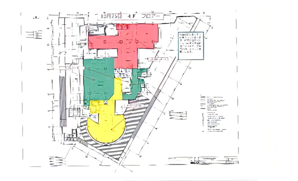
感染対策(ゾーニング)


施設内では、必要とされる清浄度によりいくつかのゾーニング(区域分け)が
されています。清浄度に応じて区域別に色分け(カラーリング)を行います。
清掃に使用される清掃用具を区域ごとに色分けし、汚染を「持ち込まない」・
「持ち出さない」を徹底して行います。

洗剤について


◎EPA登録洗剤の使用
環境消毒の世界基準になっているのは米国のシステムになります。
米国ではCDC(米国疾病予防センター)ガイドラインでは、EPA(米国環境保護局)登録されている洗剤を使用する様に指導されています。
また、EPA登録の除菌洗剤は洗剤成分のベースに第4級アンモニウム塩が配合
されており「E・B・M(科学的根拠)」に基づいた除菌効果が証明されております。
EPA登録洗剤は金属やプラスチック製備品にも非腐食性であり安全です。
弊社では当施設内全ての環境表面の劣化に配慮した除菌洗浄剤を使用させて
頂きます。
清掃スタッフ研修

◎新人スタッフに対する研修
①接遇(挨拶・マナー等)
②個人情報の取り扱い
③感染対策
④廃棄物処理
⑤針刺し事故
⑥手洗い方法
⑦事故発生時の対応 等

上記の内容を入社時研修において徹底的に指導していきます。
良質かつ適切な業務運営を安定的に提供できる体制を確保する為、弊社担当者が週に1~2回巡回し作業品質の確認及び、問題点等の改善や施設側との調整を行います。
日常清掃

◎通常医療区域・一般区域
①高所清掃(換気扇・照明等)
②洗面台清掃(備品補充等)
③床面ダスタークロス掛け(除塵)
④床面除菌洗剤濡れモップ拭き
(場合により湿乾両用モップを使用)
⑤コンタクトポイント清拭
(ドアノブ・スイッチ・手すり等)

◎汚染拡散防止区域
①高所清掃(換気扇・照明等)
②洗面台清掃(備品補充等)
③便器清掃(専用タオルにて清拭)
④コンタクトポイント清拭
(ドアノブ・スイッチ・手すり・ペーパーホルダー等)
⑤床面の除塵
⑥床面除菌洗剤濡れモップ拭き
作業シフト表

作業仕様書に基づき、作業時間、作業人数と配置、作業工程などを定めていきます。
また施設担当者様と入念な打ち合わせをし、作業内容、時間帯の調整を行います。
お気軽にお問い合わせください。042-370-1146【受付時間:9:00~17:00お見積り無料】※土日祝は受付しておりません。
お問い合わせ